Kontaktieren Sie uns gerne
Kontaktieren Sie uns gerne
Modern designt und ökologisch nachhaltig
Innen dominieren helle Farbtöne und weite Flächen. Natürliche Materialien sorgen für ein angenehmes Raumklima
| Baulinie | Designhaus |
| Bauweise | Öko-Holzhaus |
| Wohnfläche | 193m² |
| Abmessungen | 13,17m x 8,65m |
| Dachform | Satteldach DN 35° |
| Raumhöhe | 2,68m |
| Wohnfläche insgesamt | 193m² |
| Dachgeschoss: 96m² | Eltern 18m², Kind1 15m², Kind2 16m², Kind3 16m², Bad 17m², Flur 14m² |
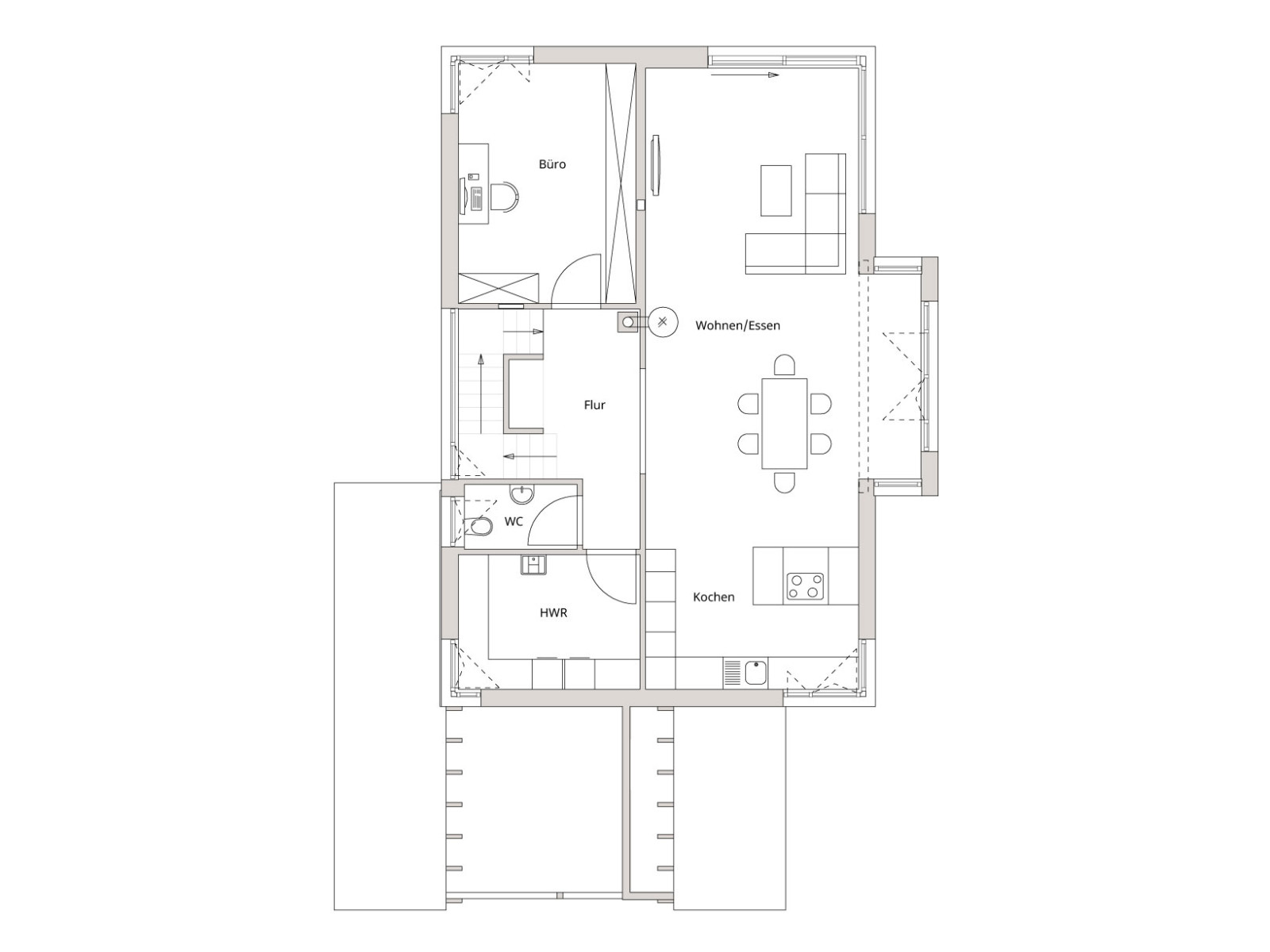
| Erdgeschoss: 97m² | Wohnen/Essen 40m², Kochen 18m², Büro 17m², WC 3m², HWR 10m², Flur 9m² |
| Kellergeschoss: 106m² | Kind1 24m², Bad 7m², Technik 17m², Keller 26m², Windfang/Garderobe 15m², Flur 8m² |
| Müll/Fahrrad | 9m² |
| Heizungssystem | Gasheizung mit Solar-Kombispeicher, Biomasse-Wärmeerzeuger mit Holzpellets |
| Details/Extras | Außenwand als Ökowand mit Holzfassadenschalung „Trendline“, Geschosshöhe EG 2,96 m, Holzofen mit Wassertasche, Echteckverglasung, verglaster 3. Giebel, Holz-Designtreppe, KFW- 55-Standard möglich, hochwertige Badausstattung, Verschattung mit Rollläden und Jalousien |
Leider sind derzeit keine Hausbesichtigungen möglich. Wir freuen uns darauf, Sie im Frühjahr 2024 wieder willkommen zu heißen und Ihnen unsere Holzhäuser persönlich zu zeigen. Verpassen Sie keine Termine – abonnieren Sie unseren Newsletter und erfahren Sie als Erster von neuen Hausbesichtigungen und exklusiven Einblicken
Oberkirch | initiativ
Oberkirch | initiativ
Oberkirch | initiativ
Oberkirch | initiativ
Mo.–Fr. 8.00 bis 12.00 und 13.00 bis 17.00 Uhr. Anrufe aus dem dt. Festnetz zum Ortstarif, Preise aus dem Mobilfunknetz ggf. abweichend (abhängig vom Provider).