Kontaktieren Sie uns gerne
Kontaktieren Sie uns gerne
| Baulinie | D145 |
| Bauweise | Öko-Holzhaus |
| Wohnfläche | 145m² |
| Abmessungen | - |
| Dachform | Satteldach 35° |
| Raumhöhe | 2,53m |
| Wohnfläche insgesamt | 145m² |
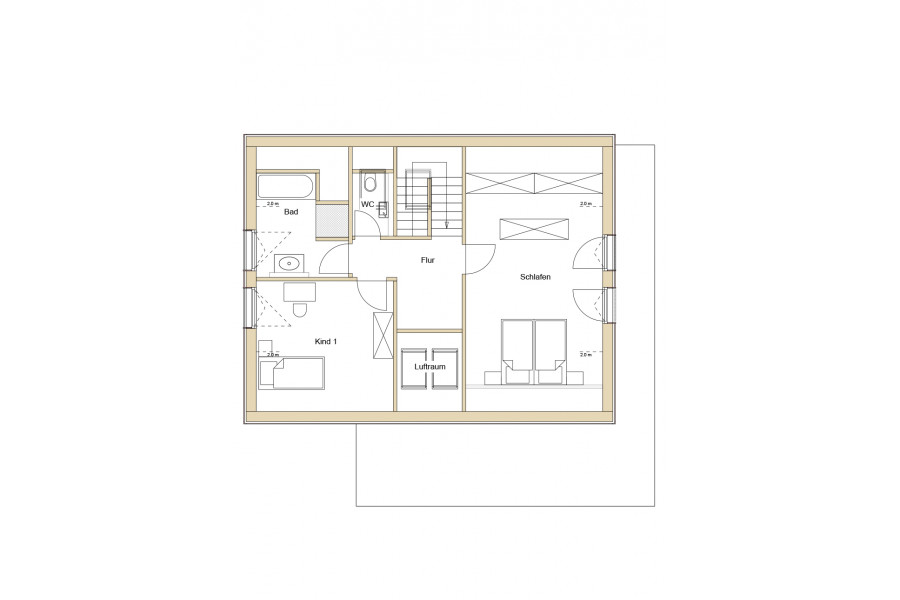
| Dachgeschoss: 68m² | Schlafen 34m², WC 2m², Bad 8m², Kind 1 17m², Flur 7m² |
| Erdgeschoss: 77m² | Wohnen/Essen 30m², Kochen 12m², Diele 15m², Bad 5m², Arbeiten 12m², Speise 3m², Balkon 33m² |
| Kellergeschoss: 81m² | Kind 2 28m², Keller 14m², Flur 10m², Bad 5m², Vorrat 13m², Technik 11m² |
| Heizungssystem | Luft-Wasser-Wärmepumpe mit Fußbodenheizung |
| Details/Extras |
|
Wohnglück aus Holz und Licht
Viel natürliches Licht, reichlich Platz für die Familie und ein nachhaltiges, wohngesundes Zuhause – das war den Bauherren dieses Öko-Holzhauses besonders wichtig. Um diesen Traum zu realisieren, entschied Familie Braun sich nach gründlicher Recherche für das Familienunternehmen Frammelsberger, das in der Region ansässig ist, über jahrzehntelange Erfahrung im Holzhausbau verfügt und das individuell geplante Haus der Familie schlüsselfertig liefern konnte.
Entstanden ist so ein dreistöckiges Holzhaus in ländlicher Hanglage, das fantastische Ausblicke über die umliegenden Häuser und Felder bietet. Von der Straßenseite aus gelangt man zunächst in eine geräumige Diele, von der es rechter Hand ins Arbeitszimmer und linkerhand ins Gäste-Bad/WC geht. Direkt nach dem Bad führt links eine Holztreppe in den Keller bzw. ins Obergeschoss, bevor sich am Ende des Flures links die Küche mit angeschlossener Speisekammer und rechts der geräumige Wohn-/Essbereich öffnet. Die weiß gestrichenen Wände sowie eine Galerie über dem Essbereich sorgen hier für ein helles und luftiges Raumgefühl. Mehrere Fenstertüren verbinden das Wohnzimmer mit dem riesigen, umlaufenden Balkon, der mit einem Stahlgeländer und Douglasienbelag versehen ist und genug Platz für Familie und Gäste bietet. Unter dem aufgeständerten Balkon befindet sich zudem eine riesige Terrasse, die vom Untergeschoss und über die den Hang hinunter führende Treppe zugänglich ist.
Von der Holztreppe im Innern des Hauses gelangt man derweil im Obergeschoss rechterhand in das geräumige Bad mit separatem WC, daneben in eins der beiden Kinderzimmer und linkerhand in das majestätische Eltern-Schlafzimmer. Hier sorgen blau gestrichene Wände im Kinderzimmer sowie blaue Farbtupfer im Elternzimmer für Abwechslung und gute Laune, während der sichtbare, riesige Dachstuhl Ruhe und Behaglichkeit verbreitet. Das Untergeschoss schließlich besteht aus einem fast 30 Quadratmeter großen weiteren Kinderzimmer mit Bad sowie einem Technikraum, einer Vorratskammer und einem Kellerabteil. Von außen präsentiert sich das Haus mit seinem großzügigen Eckfenster, der Lärchenholzschalung sowie einem geringen Dachüberstand inklusive eckiger Dachrinnen und Fallrohre in moderner Optik. Die Schalung hat dank der Behandlung mit Vergrauungslasur zudem einen gleichmäßigen und natürlichen wirkenden Grauton erhalten.
Frammelsberger lieferte alle Hauswände inklusive eingebauter Fenster und Türen fertig an, sodass der Rohbau innerhalb weniger Wochen stand. Dank der erfahrenen Hausmonteure und Zimmerleute des Hausherstellers liefen Hausmontage und Innenausbau ebenfalls problemlos ab. Die Familie ist begeistert von ihrem wohngesunden, modernen und hellen Öko-Holzhaus und freut sich vor allem über die niedrigen Heizkosten, die auf die hervorragenden Dämmeigenschaften der Holzwände zurückzuführen sind. „Auf Anraten von Frammelsberger haben wir uns zudem für eine moderne Luft-Wasser-Wärmepumpe entschieden, mit der wir unsere Fußbodenheizung betreiben“, erzählt der glückliche Hausherr und fügt noch hinzu: „Wir sind rundum zufrieden mit unserem Haus und empfehlen den Hersteller jedem weiter!“
Leider sind derzeit keine Hausbesichtigungen möglich. Wir freuen uns darauf, Sie im Frühjahr 2024 wieder willkommen zu heißen und Ihnen unsere Holzhäuser persönlich zu zeigen. Verpassen Sie keine Termine – abonnieren Sie unseren Newsletter und erfahren Sie als Erster von neuen Hausbesichtigungen und exklusiven Einblicken
Oberkirch | initiativ
Oberkirch | initiativ
Oberkirch | initiativ
Oberkirch | initiativ
Mo.–Fr. 8.00 bis 12.00 und 13.00 bis 17.00 Uhr. Anrufe aus dem dt. Festnetz zum Ortstarif, Preise aus dem Mobilfunknetz ggf. abweichend (abhängig vom Provider).