Kontaktieren Sie uns gerne
Kontaktieren Sie uns gerne
| Baulinie | Designhaus |
| Bauweise | Öko-Holzhaus |
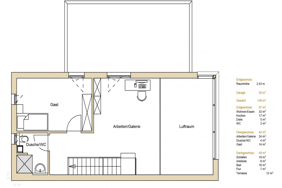
| Wohnfläche | 148m² |
| Abmessungen | - |
| Dachform | Flachdach |
| Raumhöhe | 2,43m |
| Wohnfläche insgesamt | 148m² |
| Dachgeschoss: 49m² | Schlafen 18m², Bad 16m², Ankleide 8m², Terrasse 12m², Flur 7m² |
| Obergeschoss: 42m² | Arbeiten/Galerie 24m², Dusche/WC 4m², Gast 14m² |
| Erdgeschoss: 57m² | Wohnen/Essen 33m², Kochen 17m², Diele 5m², WC 2m² |
| Kellergeschoss: 63m² | Technik/HWS 21m², Abstell/Flur 16m², Hobby 26m² |
| Heizungssystem | Luft-Wasser-Wärmepumpe mit Fußbodenheizung |
| Details/Extras |
|
Geräumiges Holzhaus im Grünen
Ein wohngesundes, nachhaltiges und gleichzeitig ganz modernes Haus: Das schwebte den Bauherren Oser und Greinke bei der Planung ihres Traumhauses vor. Ein Fertighaus sollte es sein, aber eines, das die beiden ganz nach ihren eigenen Wünschen und Vorstellungen gestalten konnten. Die Entscheidung für den richtigen Holzhausanbieter fiel dank der Empfehlung ihres Architekten auf das im badischen Oberkirch ansässige Familienunternehmen Frammelsberger, das das Paar mit ihrer „Ökowand“ mit Holzfaserdämmung und einem individuell auf sie zugeschnittenen Hausentwurf überzeugen konnte.
Entstanden ist ein so geräumiges wie gemütliches Holzhaus, das viele Rückzugsmöglichkeiten bietet. Vom überdachten und mit Holz verkleideten Eingangsbereich aus gelangt man zunächst in eine Diele, die geradeaus zu einem kleinen Gäste-WC führt. Nach links hin öffnet sich ein mit 50 Quadratmetern sehr geräumiger Wohn- und Essbereich mit gemütlichem Kamin, großem Sofa und hellem Essplatz. Eine fast komplett verglaste Wand gibt den Blick auf den weitläufigen und herrlich ruhigen Garten hinter dem Haus frei. Sie sorgt im Winter auch dafür, dass viel natürliches Sonnenlicht ins Innere fällt und das Haus so kostenlos mit erwärmt. Ein weiteres Highlight: eine offene Galerie über dem Ess- und Wohnbereich, die für ein luftiges Raumgefühl und eine elegante Verbindung zum Obergeschoss sorgt.
Über eine Holztreppe erreicht man vom Wohnzimmer aus den ersten Stock, auf dem sich ein geräumiges Gäste-Schlafzimmer sowie ein Badezimmer mit Dusche und WC befindet. Rechter Hand führt der Weg zur offenen Galerie, die mit einem gemütlichen Arbeitsplatz ausgestattet ist. Auch von hier genießt man eine fast uneingeschränkte Sicht auf den Garten sowie die direkt an den Wohnzimmerbereich angrenzende Terrasse.
Im Dachgeschoss schließlich befindet sich der private Schlafbereich des Paares. Von der Treppe aus gelangt man zunächst in das luxuriöse Wellness-Badezimmer, das neben einer barrierefreien Dusche und zwei Waschtischen auch mit einer Sauna aufwartet. Die offene Holzbalkendecke sorgt hier für eine wohltuende und entspannende Spa-Atmosphäre. Eine zweite Tür führt vom Badezimmer direkt in ein geräumiges Ankleidezimmer, an das sich das in erdigen und weißen Tönen gehaltene Schlafzimmer anschließt. Doch damit nicht genug: Das Schlafzimmer führt zu einer privaten Dachterrasse, die fantastische Ausblicke über die umliegenden Häuser bietet.
Wieder im Erdgeschoss angelangt, erreicht man schließlich den wunderschönen Garten. Vom Wohnzimmer aus betritt man zunächst die Terrasse und gelangt nach einigen Metern zu einem etwas versteckt liegenden zweiten Sitzbereich, in dem gemütliche Möbel zum Grillen, Entspannen und Feiern einladen. Eine Garage sowie ein großzügig bemessener Keller mit Technik-/Hauswirtschaftsraum, Hobbyraum und Abstellraum machen das Haus komplett.
Die Montage der im Oberkircher Werk komplett vorgefertigten Hauswände verlief schnell und reibungslos. Die Bauherren sind sehr zufrieden mit ihrem Traumhaus und fühlen sich darin nicht zuletzt aufgrund des hervorragenden Raumklimas auch richtig wohl: „Wir stehen heute noch in unserem Haus und sagen zueinander: ‚Das ist ein Traum!‘“, so Claudio Greinke. „Wir würden auf jeden Fall wieder mit Frammelsberger bauen!“
Leider sind derzeit keine Hausbesichtigungen möglich. Wir freuen uns darauf, Sie im Frühjahr 2024 wieder willkommen zu heißen und Ihnen unsere Holzhäuser persönlich zu zeigen. Verpassen Sie keine Termine – abonnieren Sie unseren Newsletter und erfahren Sie als Erster von neuen Hausbesichtigungen und exklusiven Einblicken
Oberkirch | initiativ
Oberkirch | initiativ
Oberkirch | initiativ
Oberkirch | initiativ
Mo.–Fr. 8.00 bis 12.00 und 13.00 bis 17.00 Uhr. Anrufe aus dem dt. Festnetz zum Ortstarif, Preise aus dem Mobilfunknetz ggf. abweichend (abhängig vom Provider).