Kontaktieren Sie uns gerne
Kontaktieren Sie uns gerne
| Baulinie | Designhaus |
| Bauweise | Öko-Holzhaus |
| Wohnfläche | 124m² |
| Abmessungen | 15,29 x 11,17 m |
| Dachform | Flachdach |
| Raumhöhe | 2,59m |
| Wohnfläche insgesamt | 124m² |
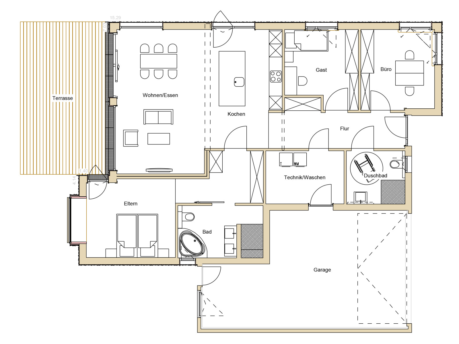
| Erdgeschoss: 124 m² | Wohnen/Essen 27m², Kochen 18m², Büro 12m², Eltern 22m², Flur 12m², Gast 11m², Duschbad 6m², Bad 7m², Technik/Waschen 9m², Terrasse 27m² |
| Sonstiges | Garage 41m² |
| Heizungssystem | Luft-Wasser-Wärmepumpe |
| Details/Extras |
Bungalow |
Modern Wohnen im ökologischen Flachdachbungalow
Nachdem die Hauseigentümer jahrelang in Beton wohnten, wünschten sie sich ein Haus aus natürlichem Baumaterial und mit warmem Ambiente. Was lag also näher als mit Holz zu bauen? Da auch der Bruder der Bauherrin schon ein Holzhaus besaß und sehr zufrieden damit war, entschloss sich das Eigentümerpaar zum Bau eines ökologischen Designhauses des alteingesessenen, deutschen Holzhausspezialisten. Dieser besaß zudem Erfahrung mit Neubauten in Frankreich, wo Haus „Design 124“ steht.
Hauptsache behaglich und barrierefrei
Zwar gehören die Hausbesitzer mit Ende fünfzig und Anfang sechzig noch nicht zum alten Eisen, jedoch entschieden sie sich mit Blick aufs Alter und allem, was da kommen mag, für einen barrierefreien, eingeschossigen Wohnsitz. Ihr erwachsener Sohn, der zwar nicht mit im neuen Haus lebt aber gern gesehener Gast ist, sitzt zudem im Rollstuhl und soll sich ungehindert im Öko-Holzhaus der Eltern bewegen können. Für die gewünschte Behaglichkeit und Wohngesundheit sorgen die mehrschaligen Blockwände, die innen aus naturhellen, horizontalen Fichtenholz- Blockbalken bestehen, während außen eine dunkelbraune Holzfassade in vertikaler Skyline-Schalung gewählt wurde. Dazwischen befinden sich Dämmung und Installationsebene. Aber es gibt noch mehr Holz in Haus „Design 124“: Eine moderne, helle Brettstapeldecke (Fichte), Eichendielen in allen Räumen außer den Bädern sowie Fensterrahmen aus Holz in der gleichen hellen Farbe wie die Wände. Außen hingegen sind die Fensterrahmen aus besonders wetterresistentem bronzefarbenem Aluminium. Zu den tragenden Blockwänden kombinierten die Hauseigentümer leichte Trennwände, die sie ganz in Naturfarben streichen ließen. Das lockert das Holzambiente auf, ohne die Behaglichkeit zu mindern und unterstreicht den modernen Charakter.
Gut durchdachter Grundriss nach Maß
Gemeinsam mit dem Architekten ihres Holzhausherstellers plante das Eigentümerpaar sein Wunschhaus ganz individuell nach den eigenen Bedürfnissen. Der Architekt nahm die Vorstellungen und Ideen der Eheleute gerne auf und erstellte unter Berücksichtigung des Grundstücks und Bebauungsplans einen ersten Entwurf, an dem im Anschluss nur noch wenig gefeilt werden musste. Neben der erwähnten Barrierefreiheit, stand ein moderner, kubischer Baukörper im Bauhausstil im Fokus sowie ein möglichst offener und mit natürlichem Licht durchfluteter Wohnbereich. Ein Flachdach war ebenso Pflicht wie eine teilweise überdachte Terrasse wünschenswert. Besonders wichtig erschien den Hauseigentümern auch die detaillierte Planung der Elektrik, da diese im Nachhinein schwieriger umzusetzen gewesen wäre. Die 124 m² des Bungalows verteilen sich auf einen langen Flur, von dem aus ein Rollstuhl-gerechtes Duschbad/WC, ein Büro, ein Gästezimmer, ein Hauswirtschafts- und Technikraum sowie der offene Wohnbereich mit Küchenzeile und Kochinsel, Esstisch und Sofaecke erreicht werden. Da der Flur zum Wohnraum hin offen ist, wirkt alles besonders weitläufig und fließend. Vom Wohnbereich geht es dann noch in eine weitere Diele mit Kleiderschrank, von der aus man ins Badezimmer (mit großzügiger Dusche und Wanne) und ins Schlafzimmer gelangt. Nennenswert sind zuletzt das nach außen kragende Sitzfenster im Schlafzimmer und der vom Wohnbereich und Schlafzimmer erreichbare, überdachte Terrasseneinschnitt. Dem Wohnhaus angeschlossen ist eine weiß getünchte Garage mit je einem eigenen Zugang in den Hauswirtschaftsraum und zum Garten. Der Hauseingang befindet sich ebenfalls in einem überdachten Einschnitt des Baukörpers, so dass Eintretende wind- und wettergeschützt von außen ins Haus gelangen.
Kurze Bauzeit und rascher Einzug
Da die Wände des Holz-Ökohauses bereits im Werk des Herstellers exakt angefertigt wurden, und dann in wenigen Elementen zum Bauplatz geliefert wurden, ging der Hausaufbau innerhalb von nur zwei Tagen vonstatten. Das alles erledigten die Handwerker und Monteure der Holzhausfirma. Der Hausherr fungierte auch als Projektleiter und übernahm die Koordination mit den örtlichen französischen Firmen, die für den Keller und den Innenausbau (Estrich, Heizung, Sanitär und Elektrik) engagiert wurden. Ein knappes Jahr nach Vertragsunterzeichnung wurde Haus „Design 124“ termingetreu geliefert und schon vier Monate danach konnte die Bauherrschaft in ihr komplett fertiges Eigenheim einziehen. Seitdem genießen sie das komfortable Leben in ihrem wohngesunden, nachhaltig gebauten Öko- Holzbungalow und fühlen sich „pudelwohl“ in dem einzigartigen Raumgefühl darin. Jederzeit würden sie wieder ein Holzhaus mit ihrem Hersteller bauen und möchten keinesfalls mehr tauschen. Passend zum Haus und daher konsequent gewählt ist die Ressourcen schonende Heizenergiequelle, welche die Hausbesitzer nutzen: eine Luft/Wasser-Wärmepumpe. In den nächsten Monaten ist dann noch die Installation und Inbetriebnahme eine Photovoltaikanlage geplant, die besonders bei Wärmepumpen Sinn macht. Gerade in Frankreich ist das nachhaltige Ökohaus „Design 124“ eine wünschenswerte, energieeffiziente Rarität und dient hoffentlich vielen Bauinteressenten hinsichtlich Energiebilanz und Klimaschutz als Vorbild.
Leider sind derzeit keine Hausbesichtigungen möglich. Wir freuen uns darauf, Sie im Frühjahr 2024 wieder willkommen zu heißen und Ihnen unsere Holzhäuser persönlich zu zeigen. Verpassen Sie keine Termine – abonnieren Sie unseren Newsletter und erfahren Sie als Erster von neuen Hausbesichtigungen und exklusiven Einblicken
Oberkirch | initiativ
Oberkirch | initiativ
Oberkirch | initiativ
Oberkirch | initiativ
Mo.–Fr. 8.00 bis 12.00 und 13.00 bis 17.00 Uhr. Anrufe aus dem dt. Festnetz zum Ortstarif, Preise aus dem Mobilfunknetz ggf. abweichend (abhängig vom Provider).