Kontaktieren Sie uns gerne
Kontaktieren Sie uns gerne
| Baulinie | D253 |
| Bauweise | Öko-Holzhaus |
| Wohnfläche | 253m² |
| Abmessungen |
21,00 x 10,55 m |
| Dachform | Flachdach |
| Raumhöhe | 2,50m |
| Wohnfläche insgesamt | 253m² |
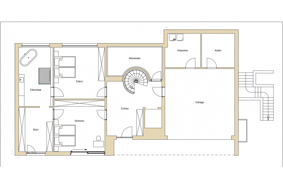
| Erdgeschoss: 130m² |
Wohnen 23m², Eltern 23m², Büro 13m², Entree 22m², Elternbad 17m², Weinkeller 12m², Waschen 10m², Keller 10m² |
| Dachgeschoss: 123m² | Wohnen 30m², Kochen 32m², Büro 11m², Treppe Vorplatz 18m², WC 2m², Abstell 2m², Terrasse 54m², Balkon 35m² |
| Heizungssystem | Luft-Wasser-Wärmepumpe, Fußbodenheitzung, zentr. Lüftungsanalge mit Abluft/Zuluft Wärmerückgewinnung, Klimaanlage |
| Details/Extras |
Außenwand als Ökowand mit Installationsebene, Fassade als Putzfassade mit Fassadenverkleidung in Rockpanel, Verschattung mit elektr. Jalousien, verputze Holzbalkendecke, Holz-Alu-Fenster in Fichte, Akustikdecke über dem Innenschwimmbad, Lichtkuppel, Weinkeller, hochwertige Badausstattung, Holz-Wendeltreppe in Eiche, Zimmertüren in Eiche, Garagentor elekt. betrieben, Fahrstuhlschacht |
Lebe lieber ungewöhnlich
Haus Seeblick
Vom Innenschwimmbad über einen Fahrstuhl bis hin zum eigenen Weinkeller: Die Baufamilie wollte sich beim Bau ihres Eigenheims gleich mehrere langgehegte Träume erfüllen. Gleichzeitig sollte das Haus aber auch in Sachen Nachhaltigkeit, Wohngesundheit und Ökologie punkten. Mit dem erfahrenen badischen Holzhaushersteller Frammelsberger fanden die Bauherren den perfekten Partner, um aus ihren Wünschen Realität werden zu lassen.
Das Ergebnis ist ein modernes, energiesparendes Holzhaus mit Flachdach, das nicht nur den hohen ökologischen Ansprüchen der Bauherren Rechnung trägt, sondern auch ästhetisch überzeugt. Von außen besticht das Gebäude direkt mit einer Verkleidung aus dunklen matten Fassadenplatten, unter der sich eine Putzfassade verbirgt. Von der Straßenseite her betritt man zunächst das Entrée mit Garderobe, von dem eine Wendeltreppe aus Eichenholz in das Obergeschoss führt. Für einen besonderen Akzent sorgen hier vertikale Leuchtstreifen, die den Vorraum je nach Stimmungslage in verschiedenen Farben erstrahlen lassen. Rechter Hand erreicht man die Garage, die zu einem Wasch- und einem Kellerraum weiterführt. Hinter der Wendeltreppe befindet sich der gut bestückte Weinkeller der Familie, während linker Hand ein Schlaf- und ein kleines Wohnzimmer anschließen. Das Elternschlafzimmer führt in ein eigenes Elternbad mit freistehender Badewanne, barrierefreier Dusche und Doppelwaschbecken, von dem aus wiederum eine Verbindung ins Bürozimmer besteht.
Zurück im Entrée hat die Familie die Wahl: Nimmt sie die stylische Wendeltreppe ins Dachgeschoss – oder doch den Fahrstuhl, der sich ganz unauffällig hinter der Garderobe versteckt? Oben angekommen, eröffnet sich in jedem Fall ein mit 90 Quadratmetern riesiger Wohn-, Koch- und Essbereich, in dem zunächst der moderne, frei von der Decke hängender Kamin ins Auge fällt. Am Ende des Wohnzimmers schließt sich ein WC sowie ein weiterer Büroraum an. Bodentiefe Holz-Alu-Fenster aus Fichtenholz auf der gesamten Länge der von der Straße abgewandten Seite des Raums geben den Blick auf eine wunderschöne Seenlandschaft frei und sorgen für viel natürlichen Lichteinfall. Über eine Schiebetür erreicht man von hier aus die 54 Quadratmeter große Terrasse, die dank einer großen Markise im Sommer viel Schutz vor der Sonne bietet. Und wer lieber das Treiben auf der Straße beobachten möchte, kann es sich auf dem Balkon auf der anderen Seite des Hauses gemütlich machen.
Doch die Bauherren mögen es auch sportlich – und diesem Hobby können sie im Keller ihres neuen Hauses nachgehen. Neben einem Schwimmbad befindet sich dort auch ein kleines Fitnessstudio, eine barrierefreie Dusche sowie eine Sauna zur Entspannung. Beheizt wird diese – wie auch der Rest des Hauses – dank einer Luft-Wasser-Wärmepumpe; die Familie hat außerdem eine Fußbodenheizung, eine zentrale Lüftungsanlage mit Zuluft und Abluft sowie eine Klimaanlage installiert. Dazu erzeugt der Kaminofen im gesamten Wohnbereich eine wohlige Wärme. „Unsere Ökowände halten die Wärme dazu hervorragend im Haus, und die Fenster besitzen ebenfalls eine Wärmeschutzverglasung“, so der Bauherr. „Wir sind daher rundum zufrieden mit unserem Haus – und würden jederzeit wieder mit Frammelsberger bauen!“
Leider sind derzeit keine Hausbesichtigungen möglich. Wir freuen uns darauf, Sie im Frühjahr 2024 wieder willkommen zu heißen und Ihnen unsere Holzhäuser persönlich zu zeigen. Verpassen Sie keine Termine – abonnieren Sie unseren Newsletter und erfahren Sie als Erster von neuen Hausbesichtigungen und exklusiven Einblicken
Oberkirch | initiativ
Oberkirch | initiativ
Oberkirch | initiativ
Oberkirch | initiativ
Mo.–Fr. 8.00 bis 12.00 und 13.00 bis 17.00 Uhr. Anrufe aus dem dt. Festnetz zum Ortstarif, Preise aus dem Mobilfunknetz ggf. abweichend (abhängig vom Provider).