Kontaktieren Sie uns gerne
Kontaktieren Sie uns gerne
Schöne Aussichten
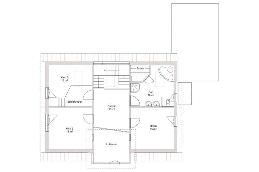
Moderner Grundriss mit geschickter Raumaufteilung.
| Baulinie | Designhaus |
| Bauweise | Öko-Holzhaus |
| Wohnfläche | 168m² |
| Abmessungen | 8,60 x 12,40m |
| Dachform | Satteldach DN 30° |
| Raumhöhe | 2,68m |
| Wohnfläche insgesamt | 168m² |
| Dachgeschoss: 77m² | Eltern 16m², Kind 16m², Kind 16m², Bad 16m², Galerie 13m² |
| Erdgeschoss: 96m² | Essen/Flur 32m², Wohnen 19m², Kochen 16m², Büro 13m², Abst. 2m², Windfang/Garderobe 7m², Duschbad 3m², Technik 4m² |
| Heizungssystem | Luft-Wasser-Wärmepumpe, Solarthermie, Gasbrennwertgerät, Holz |
| Details/Extras |
Außenwand als Ökowand mit Installationsebene, Fassade als Putzfassade mit Holzelementen aus Lärche, Gipsfaserplatten, Verschattung mit Rollläden oder Jalousien. |
Leider sind derzeit keine Hausbesichtigungen möglich. Wir freuen uns darauf, Sie im Frühjahr 2024 wieder willkommen zu heißen und Ihnen unsere Holzhäuser persönlich zu zeigen. Verpassen Sie keine Termine – abonnieren Sie unseren Newsletter und erfahren Sie als Erster von neuen Hausbesichtigungen und exklusiven Einblicken
Oberkirch | initiativ
Oberkirch | initiativ
Oberkirch | initiativ
Oberkirch | initiativ
Mo.–Fr. 8.00 bis 12.00 und 13.00 bis 17.00 Uhr. Anrufe aus dem dt. Festnetz zum Ortstarif, Preise aus dem Mobilfunknetz ggf. abweichend (abhängig vom Provider).