Kontaktieren Sie uns gerne
Kontaktieren Sie uns gerne
Hell und großzügig
Klassischer rechteckiger Grundriss ohne Vorsprünge
| Baulinie | Designhaus |
| Bauweise | Öko-Holzhaus |
| Wohnfläche | 172m² |
| Abmessungen | 11,71 x 7,97m + 7,80 x 7,97m |
| Dachform | Satteldach DN 40° |
| Raumhöhe | 2,53m |
| Wohnfläche insgesamt | 172m² |
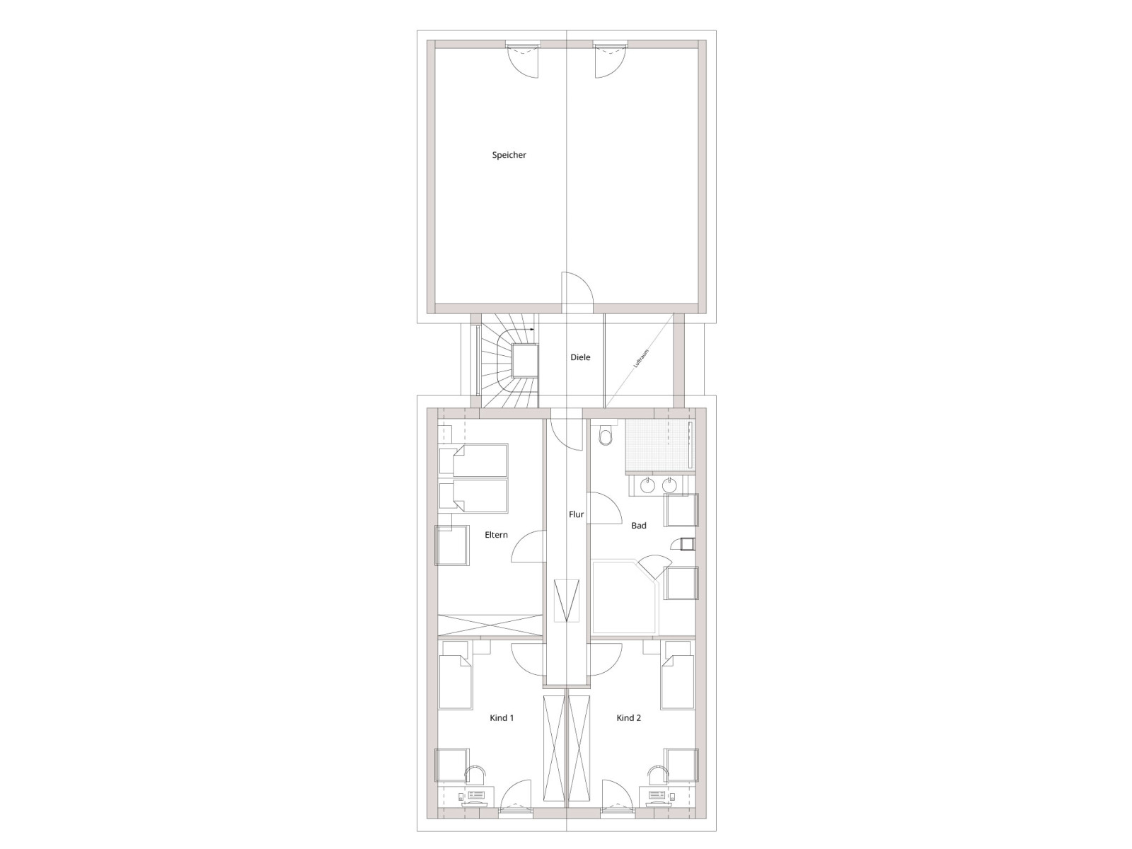
| Dachgeschoss: 83m² | Eltern 19m², Kind1 16m², Kind2 16m², Bad 18m², Flur 9m², Diele 5m² |
| Erdgeschoss: 89m² | Wohnen/Essen 29m², Kochen 13m², Büro 8m², Gast 10m², Eingang 10m², WC 3m², Bad 5m², Abst. 5m², Flur 6m² |
| Speicher | 55m² |
| Garage | 55m² |
| Heizungssystem | Luft-Wasser-Wärmepumpe, Fußbodenheizung, Frischluftsystem mit Wärmerückgewinnung |
| Details/Extras | Außenwand als Ökowand mit Installationsebene, Fassade als Putzfassade in Weiß-Grau, Gipsfaserplatten, Verschattung mit Rollläden/ Jalousien, sichtbare Brettstapeldecke |
Leider sind derzeit keine Hausbesichtigungen möglich. Wir freuen uns darauf, Sie im Frühjahr 2024 wieder willkommen zu heißen und Ihnen unsere Holzhäuser persönlich zu zeigen. Verpassen Sie keine Termine – abonnieren Sie unseren Newsletter und erfahren Sie als Erster von neuen Hausbesichtigungen und exklusiven Einblicken
Oberkirch | initiativ
Oberkirch | initiativ
Oberkirch | initiativ
Oberkirch | initiativ
Mo.–Fr. 8.00 bis 12.00 und 13.00 bis 17.00 Uhr. Anrufe aus dem dt. Festnetz zum Ortstarif, Preise aus dem Mobilfunknetz ggf. abweichend (abhängig vom Provider).