Kontaktieren Sie uns gerne
Kontaktieren Sie uns gerne
Zeitgemäß Wohnen
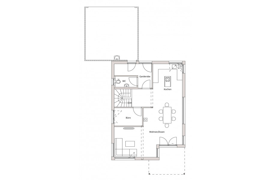
Rechteckiger Grundriss mit Garagenanbau und einer weitläufigen Terrasse.
| Baulinie | Designhaus |
| Bauweise | Öko-Holzhaus |
| Wohnfläche |
140m² |
| Abmessungen | 11,01 x 8,20m |
| Dachform | Satteldach DN 38° |
| Raumhöhe | 2,53m |
| Wohnfläche insgesamt | 140m² |
| Dachgeschoss: 70m² | Eltern 18m², Kind1 15m², Kind2 15m², Bad 11m², Flur 7m², Duschbad 4m² |
| Erdgeschoss: 70m² | Wohnen/Essen 44m², Kochen 9m², Garderobe 8m², Büro 6m², WC 3m² |
| Heizungssystem | Luft-Wasser-Wärmepumpe, Solarthermie, Gasbrennwertgerät, Holz |
| Details/Extras | Außenwand als Ökowand mit Installationsebene (KFW 70), Fassade als Putzfassade mit Holzelementen, Holzbalkon, Flachdacherker |
Leider sind derzeit keine Hausbesichtigungen möglich. Wir freuen uns darauf, Sie im Frühjahr 2024 wieder willkommen zu heißen und Ihnen unsere Holzhäuser persönlich zu zeigen. Verpassen Sie keine Termine – abonnieren Sie unseren Newsletter und erfahren Sie als Erster von neuen Hausbesichtigungen und exklusiven Einblicken
Oberkirch | initiativ
Oberkirch | initiativ
Oberkirch | initiativ
Oberkirch | initiativ
Mo.–Fr. 8.00 bis 12.00 und 13.00 bis 17.00 Uhr. Anrufe aus dem dt. Festnetz zum Ortstarif, Preise aus dem Mobilfunknetz ggf. abweichend (abhängig vom Provider).