Kontaktieren Sie uns gerne
Kontaktieren Sie uns gerne
Helles Familienhaus im Landhausstil
Massivholzhaus mit viel Liebe zum Detail.
| Baulinie | Blockhaus |
| Bauweise | Öko-Holzhaus |
| Wohnfläche | 148m² |
| Abmessungen | 12,59 x 9,61m |
| Dachform | Satteldach DN 35° |
| Raumhöhe | 2,45m |
| Wohnfläche insgesamt | 148m² |
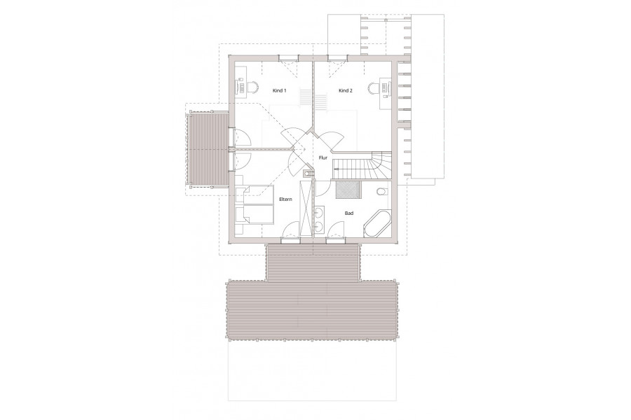
| Dachgeschoss: 66m² | Schlafen 17m², Bad 11m², Flur 3m², Kind1 18m², Kind2 17m² |
| Erdgeschoss: 82m² | Wohnen/Essen 30m², Kochen 11m², Büro/Gast 11m², Flur 13m², WC 3m², Technik 14m² |
| Garage / Abstellraum: 45m² | Garage 34m², Abstellraum 11m² |
| Heizungssystem | Luft-Wasser-Wärmepumpe mit Solarkombispeicher (750L), Gas-Brennwertgerät, Fußbodenheizung, Kamin (Holz) |
| Details/Extras | Außenwand als Holzrahmenfachwerkskonstruktion außen und Blockwand innen mit Installationsebene, Fassade als Holzfassade in Blockwandschalung, Verschattung mit Rollladen oder Jalousien, sichtbare Holzbalkendecke, Klappläden aus Massivholz |
Leider sind derzeit keine Hausbesichtigungen möglich. Wir freuen uns darauf, Sie im Frühjahr 2024 wieder willkommen zu heißen und Ihnen unsere Holzhäuser persönlich zu zeigen. Verpassen Sie keine Termine – abonnieren Sie unseren Newsletter und erfahren Sie als Erster von neuen Hausbesichtigungen und exklusiven Einblicken
Oberkirch | initiativ
Oberkirch | initiativ
Oberkirch | initiativ
Oberkirch | initiativ
Mo.–Fr. 8.00 bis 12.00 und 13.00 bis 17.00 Uhr. Anrufe aus dem dt. Festnetz zum Ortstarif, Preise aus dem Mobilfunknetz ggf. abweichend (abhängig vom Provider).