Kontaktieren Sie uns gerne
Kontaktieren Sie uns gerne
Natürlichkeit trumpft
Das Massivholzhaus im Landhausstil ist aus dicken, einschaligen Kiefernblockwänden gebaut.
| Baulinie | Blockhaus |
| Bauweise | Öko-Holzhaus |
| Wohnfläche | 155m² |
| Abmessungen | 10,80 x 9,22m |
| Dachform | Satteldach DN 35° |
| Raumhöhe | 2,45m |
| Wohnfläche insgesamt | 155m² |
| Dachgeschoss: 74 m² | Eltern 17m², Kind1 18m², Kind2 18m², Bad 10m², Flur 7m², Ankleide 4m² |
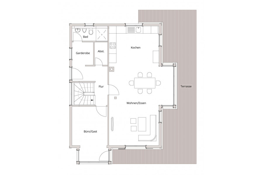
| Erdgeschoss: 81 m² | Wohnen/Essen 34m², Kochen 15m², Büro/Gast 14m², Abst. 3m², Flur 7m², Bad 4m², Garderobe 4m² |
| Terrasse | 30m² |
| Heizungssystem | Luft-Wasser-Wärmpepumpe, Solarthermie, Gasbrennwertgerät, Holz |
| Details/Extras | Außenwand als Blockwand, Verschattung mit Rollladen, Klappläden oder Jalousien |
Leider sind derzeit keine Hausbesichtigungen möglich. Wir freuen uns darauf, Sie im Frühjahr 2024 wieder willkommen zu heißen und Ihnen unsere Holzhäuser persönlich zu zeigen. Verpassen Sie keine Termine – abonnieren Sie unseren Newsletter und erfahren Sie als Erster von neuen Hausbesichtigungen und exklusiven Einblicken
Oberkirch | initiativ
Oberkirch | initiativ
Oberkirch | initiativ
Oberkirch | initiativ
Mo.–Fr. 8.00 bis 12.00 und 13.00 bis 17.00 Uhr. Anrufe aus dem dt. Festnetz zum Ortstarif, Preise aus dem Mobilfunknetz ggf. abweichend (abhängig vom Provider).